Hastiado de ver cómo los “micro-flats”, los “tiny-homes”, los “lofts” y las “suites” aparecen regularmente como una idea novedosa que ayudará a solucionar la carestía de vivienda, me ha encantado descubrir un magnífico edificio de 1937 que se anticipó casi cien años a esta tendencia y sigue en pie (aunque desfigurado por un desafortunado lavado de cara).
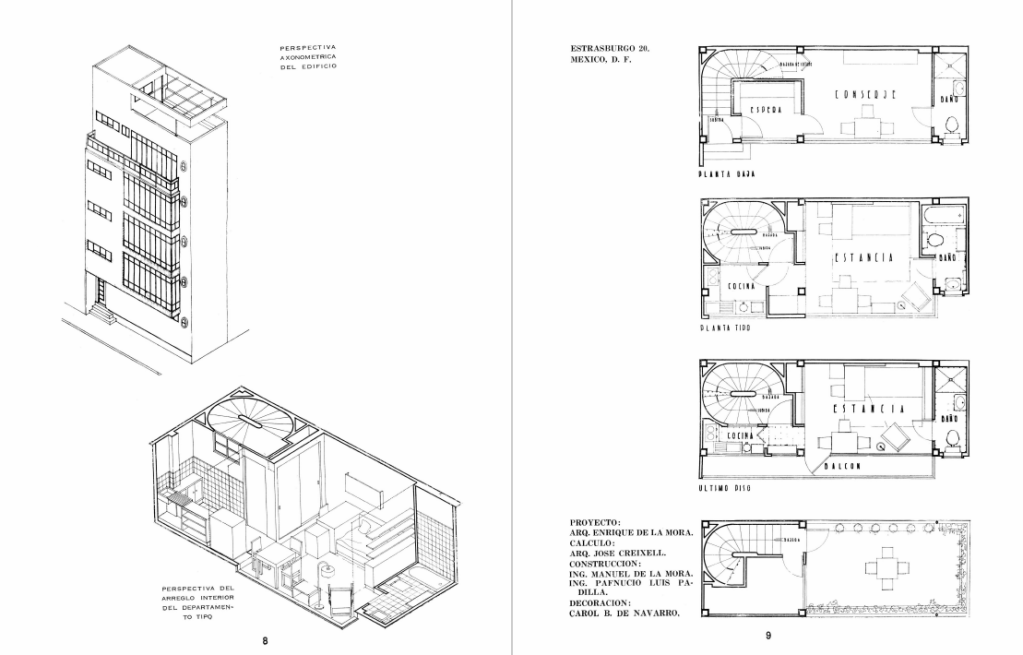
En un diminuto terreno de 27 m2 (9,2 por 3,2 metros) situado a una cuadra del Paseo de la Reforma, el arquitecto Enrique de la Mora proyectó un singular edificio de 4 apartamentos -uno por nivel- con el programa mínimo “para una persona o matrimonio”.
Pese a su reducidísimo tamaño (unos 20 m2 por unidad, descontando la escalera común de acceso), cada espacio está elegantemente articulado de manera que hay un pequeño vestíbulo, una cocina y baño independientes y una sala-dormitorio, todos completamente exteriores. También cuenta con una azotea común que -en su día- contaba con excelentes vistas al Ángel de la Independencia.
Me parece un recordatorio perfecto de cómo hemos degradado los estándares de vivienda aceptando -incluso en viviendas de “gama alta”- prescindir del vestíbulo o renunciar a la iluminación y ventilación natural de todos los espacios, y de cómo la dignidad de una vivienda es independiente de su tamaño. Por desgracia, también nos recuerda el poco respeto que tenemos por el patrimonio residencial moderno.




